THE FOREVER HOME - DESIGN FOR FLEXIBILITY
MINNEAPOLIS HOME + GARDEN SHOW - IDEA HOME - 2020
Loon Architects was honored to be part of the 2020 Idea Home team. The theme was still not set when joining the team, but Loon Architects leaped on the opportunity to volunteer its specialty in designing "Living in Place" and "Forever Home" concepts. This direction for the show was well received and adopted as the theme for that year's Idea Home Show, allowing Loon Architects and all other firms represented in the show the opportunity to cater to the ends of the millions of Americans who are interested in exploring what it might mean to inhabit a "Forever Home."
With a focus on custom home design, Loon Architects juggles many factors to make each project personalized. We design the home to interact with the site and natural views connected to your unique surroundings. Using craft and quality materials, we enrich the design of interior spaces and maximize comfort and usability to ensure form meets function. What sets us apart from others is our attentive focus on the details that coalesce to ensure the home is attuned to the changing needs of the resident as they move throughout their natural lifecycle. The product is a comfortable home that nurtures you and your guests indefinitely.
Our firm has prioritized continually educating ourselves on what it means to incorporate "living in place" into the design process. As owner and principal designer, Steve has attended seminars and training sessions and earned several certifications, including one certification as an "Aging in Place" Specialist and another as a "Living in Place" Professional. Steven also previously held his place as a member of the National Aging in Place Council and has been asked to share his expertise with others in various settings.
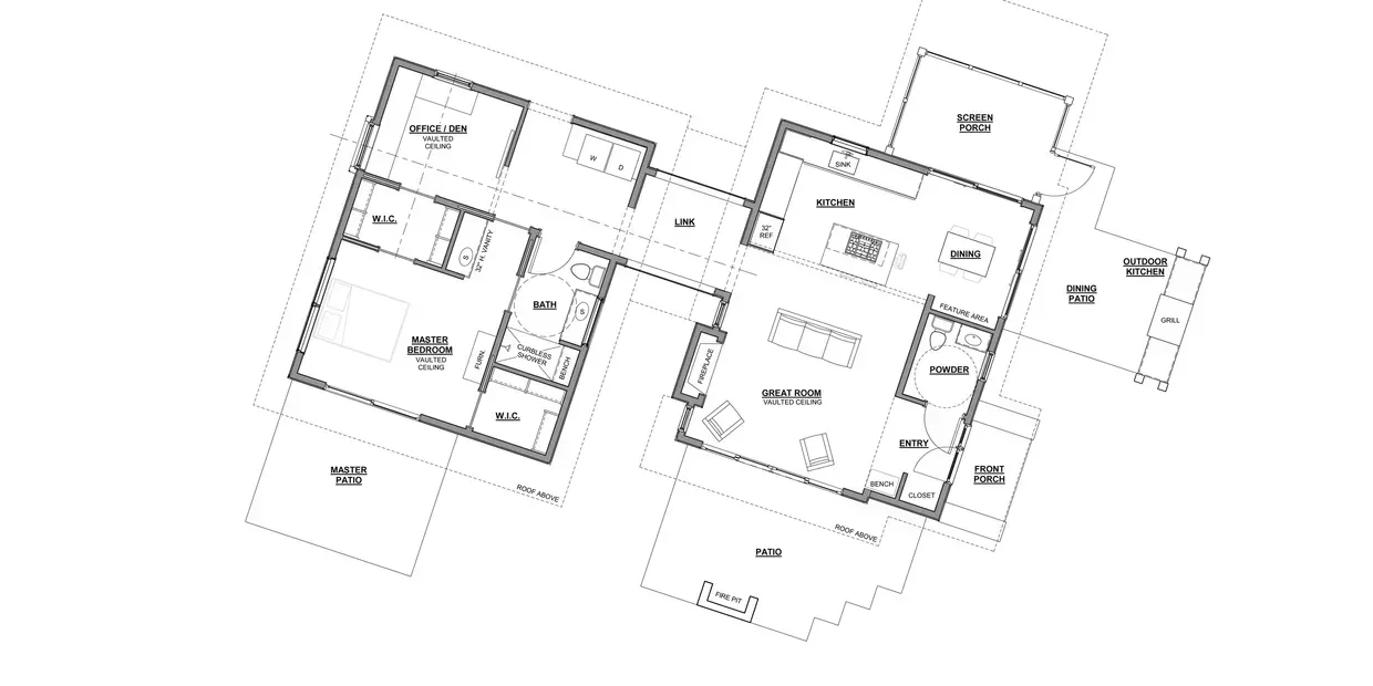
By layering the "living in place" concepts into our design, we aim to provide our clients comfort in their home endlessly. Each time you reinvest in your home, we invite you to consider how that investment will ease the barriers you may face and accommodate your changing needs. The details and layout you see before you were all designed as "Peter Pan" homes, dynamic housing for people that never grow old. Some of the specific barriers we have designed around include steep stairs, tight bathrooms, small kitchens, narrow doorways, bedrooms (and bathrooms) located upstairs, and inaccessible laundry units located in basements and other hard-to-reach areas of the home.
As an alternative, the "Forever Home" design demonstrates some of the functional benefits of the "Living in Place" concept without sacrificing form. In our "Forever Home" designs, we explore the impact that color and lighting have on a space. Moreover, this home style eliminates the barriers of a "Peter Pan" house by providing single-level living with generous circulation, wide doorways, and smart technology, all seamlessly integrated. Some other features include high-contrast wall-to-floor finishes for the visually impaired, easy-to-use cabinet and countertop features, and fashionable bathroom accessories that double as grab bars.
We invite you to explore our specialty and imagine what life could look like in your "Forever Home."
2020 IDEA HOME - FOREVER HOME
The "Forever Home" design embraces color, texture, lighting and numerous other delightful whimsical features that work harmoniously to ensure that at-home life is easy, regardless of age or ability.




