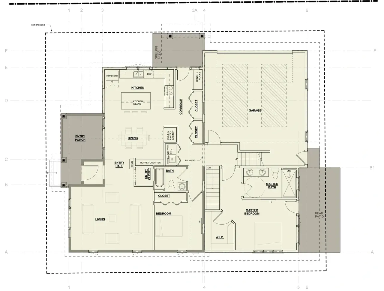
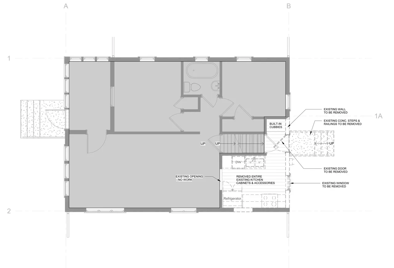
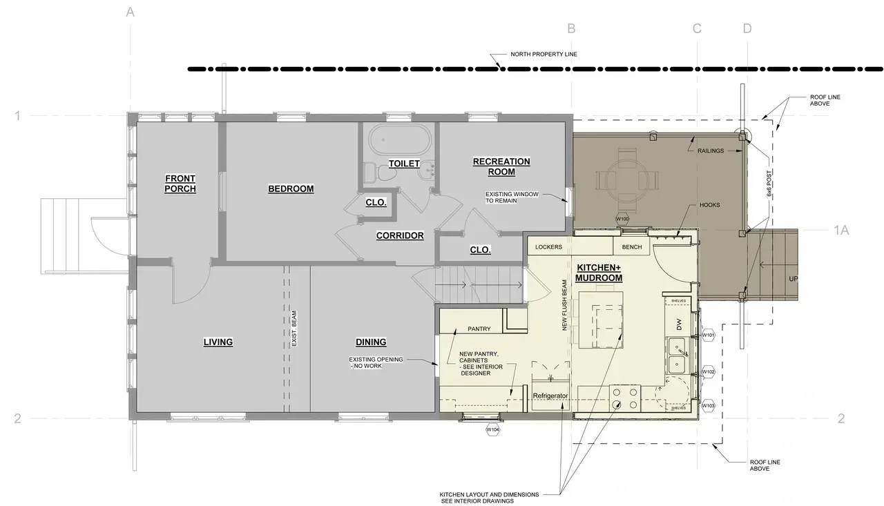
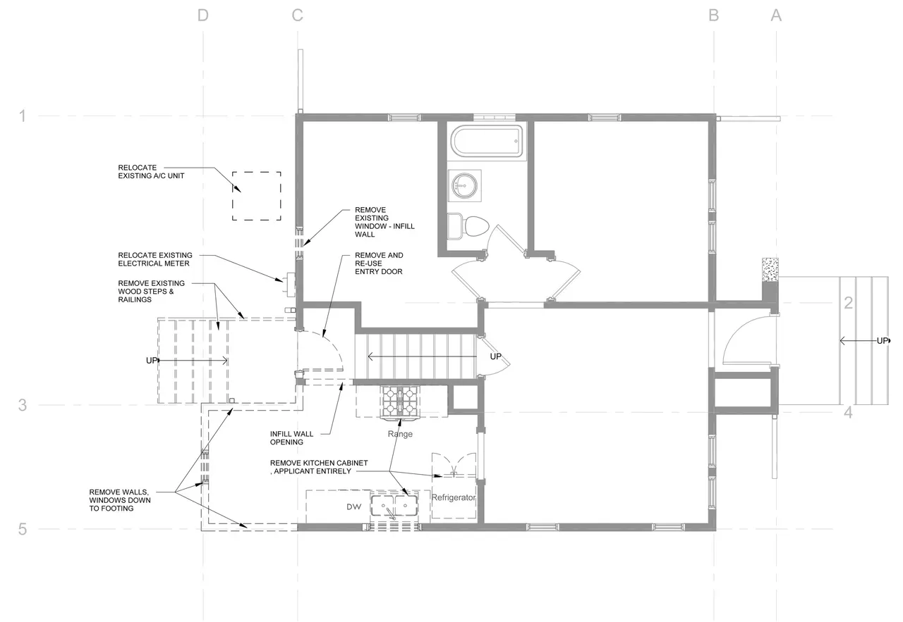
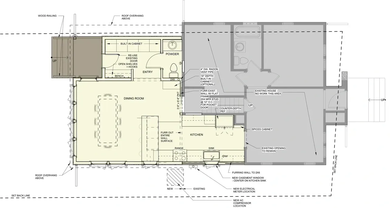
BLEND RENOVATION
The owner challenged the architect to add "no new square footage" to this Southwest Minneapolis home. The interior was customized to an open modern retirement theme. This unique blend of styles kept the charm and scale similar to neighboring homes while opening the interior to connect spaces and capture daylight and landscape views. This view was accomplished by adding daylight with full-height windows to views and connecting rooms by adding flush beams to continue ceiling planes. A new vaulted ceiling was added over the kitchen and family room, capturing sunlight and opening a wonderful view of the integrated backyard landscaping. The final detail was the addition of a new ramp and covered entry, both of which allowed for a no-step entry as part of the overall strategy to transform this home into a living space.
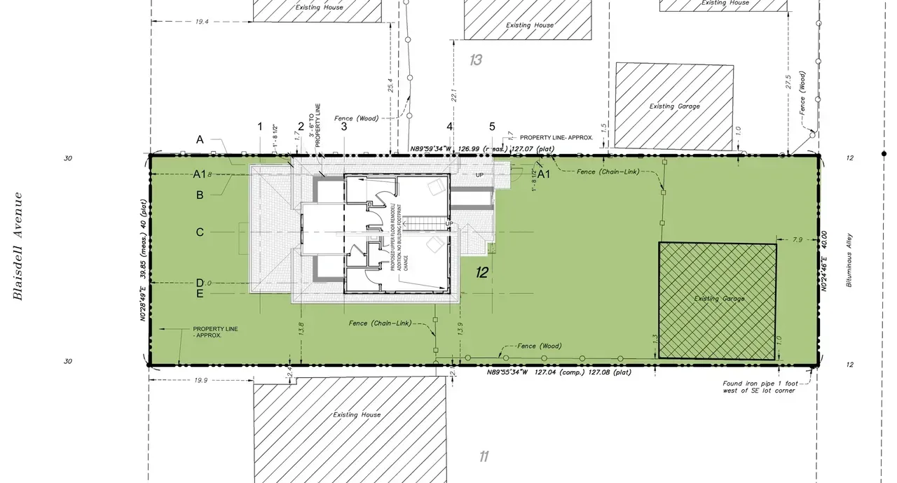
Wayzata Place
All foreground space is new to add charm to a home that had been dominated by a turnaround driveway in front—building a new garage with side yard access allowed room for luscious landscape, a covered porch, and an overall more inviting entry into the estate. The architect also integrated a new master suite with an inset balcony above the garage to create a generous living space for the couple to unwind.
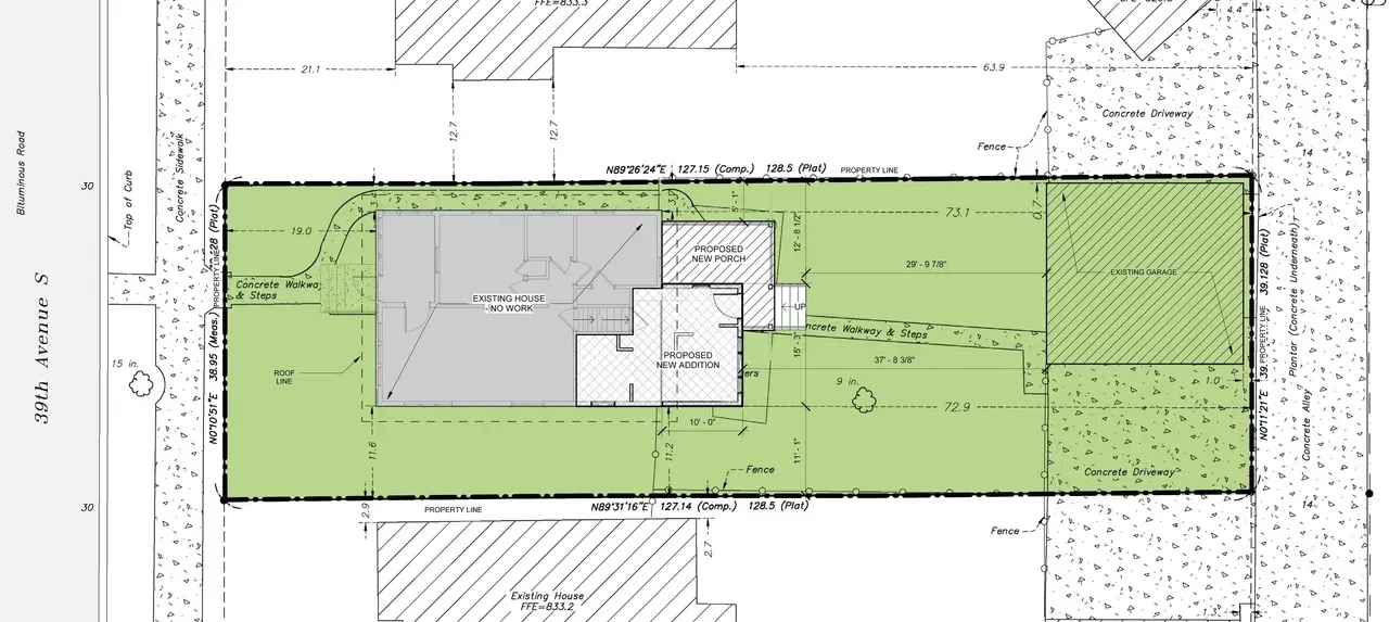
Colonial Capture
A selective renovation and modest addition to the space transformed this turn-of-the-century home into a lovely, open living space that embraces its beautiful backyard views. Extending a new dining room over the previous drive-under garage created a covered walk-out entry opening to a new patio. Moreover, the extensive structural renovation allowed continuous ceiling planes to open, transforming the once segmented rooms into a cohesive unit.
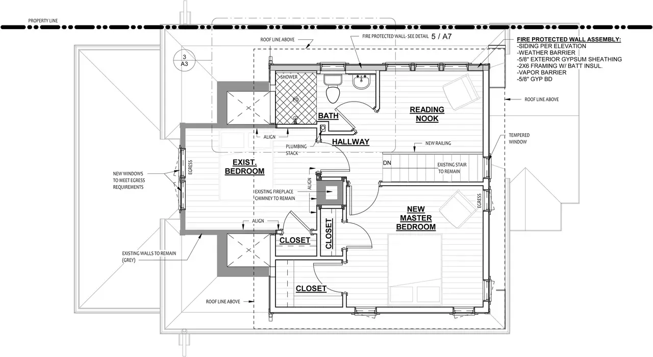
Attic Renovation
While adding a third-level window seat to view St. Paul's Mississippi River valley, the architect increased this home's size by carving out a master suite in the existing unfinished attic. A creative floor plan under the existing roof allowed for the addition of this new master bedroom plus an entirely new bathroom and walk-in closet. A yoga and sitting room also made its way into the unit, transforming a once cold, dusty, and forgotten attic into a space that screams charming.
Urban Prairie
Originally a Phillips 66 gas station in South Minneapolis, this space was transformed into a modern two-bedroom home and office. The daring design and incredible execution earned this project a spot on an episode of the HBO series "Before and After." The architect incorporated exposed wood structures and transparent stains-to-match to give this unit an industrial feel. Moreover, an open balcony that doubles as a reading and study lounge was added in the high ceilings of the old car repair bay.






































































































