Modern Elegance - Shorewood, MN
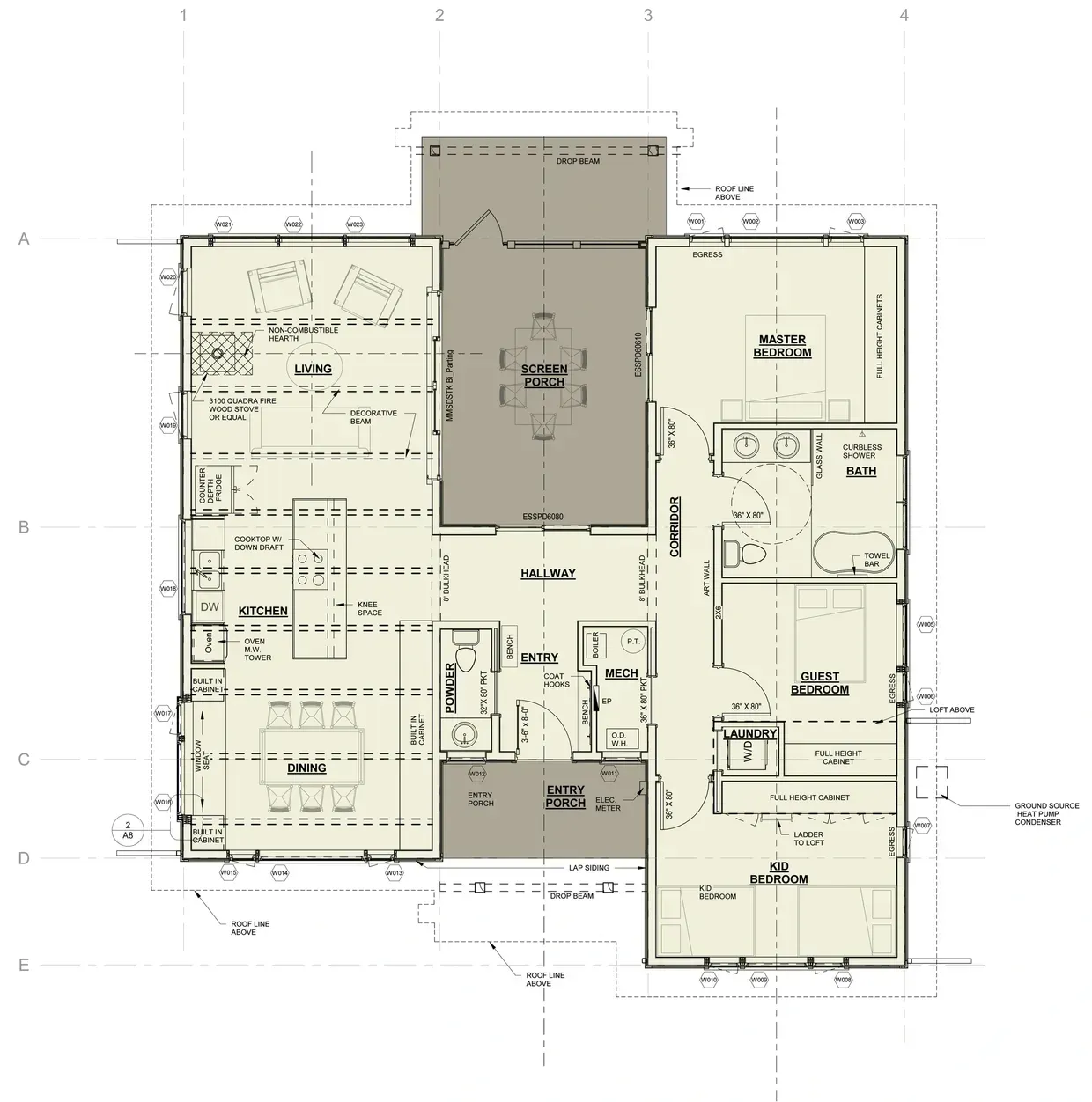
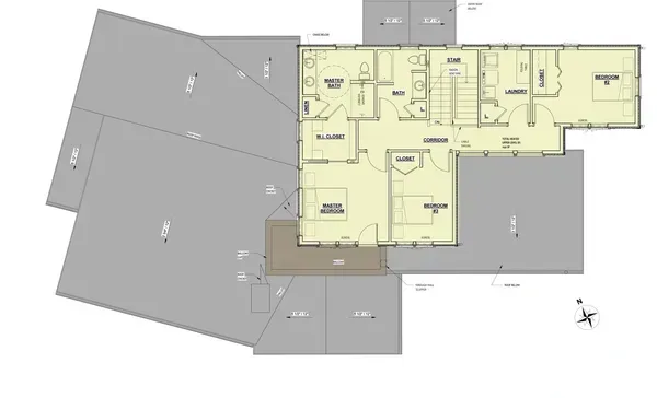
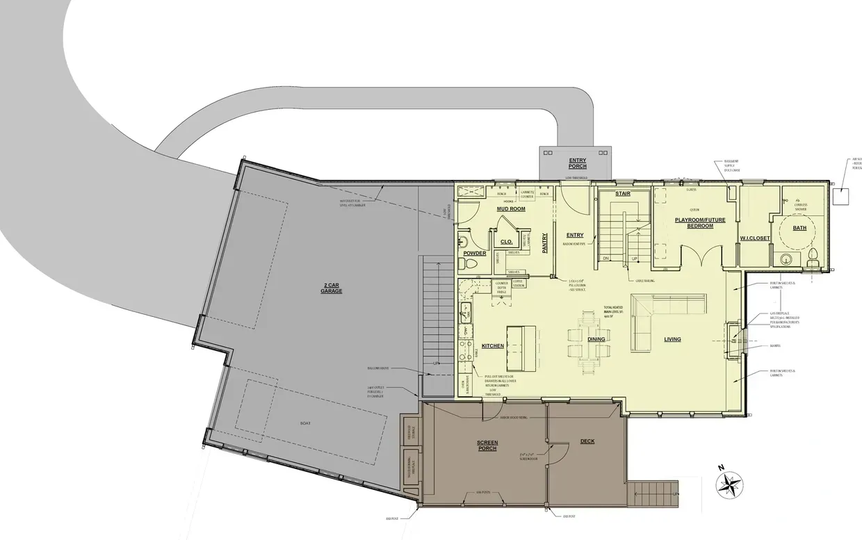
Nestled on a forested 3-acre lot on the Minnetonka Regional Trail, this property has been thoughtfully designed for aging-in-place with all one-level living. This project was originally designed for 2020 Minneapolis Home And Garden Show to showcase Living in Place design.
Nestled on a forested 3-acre lot on the Minnetonka Regional Trail, this property has been thoughtfully designed for aging-in-place with all one-level living. This project was originally designed for 2020 Minneapolis Home And Garden Show to showcase Living in Place design.
Vista Ridge - WI
Built down the ridge line of the family farm field, this new home will juxtapose the traditional prairie-style architecture with a contemporary style supported by glass and stone. The skylight takes in ambient light throughout the day and the living room's glass wall and large cantilevered deck to the southwest overlook the rolling hills of Northern Wisconsin.
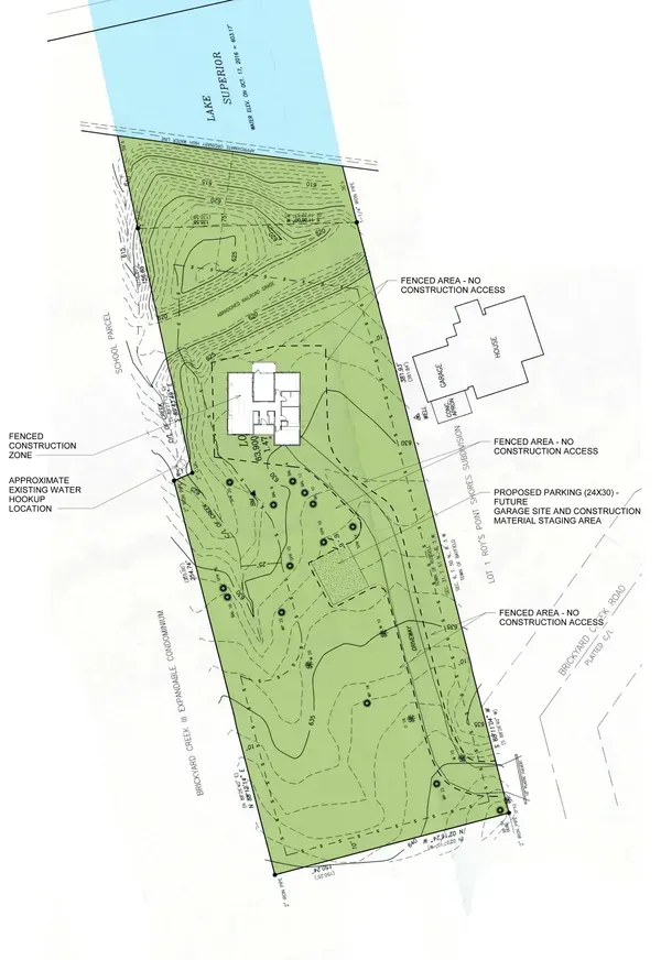
Brickyard Creek Serenity - Bayfield WI
Nestled within the serene beauty of Brickyard Creek Bayfield WI, this new cabin project seeks to harmonize modern comfort with the natural charm of it surroundings. Designed as a tranquil retreat, the cabin will serve as a gateway for relaxation, connection with nature, and cherished moments with family and friends.
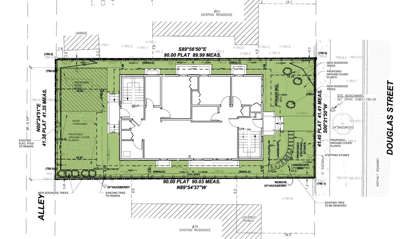
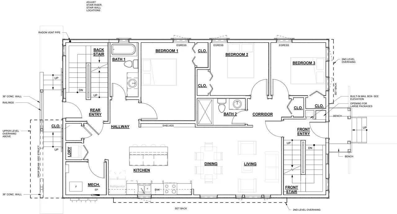
St Paul Triplex Apartment - St Paul, MN
Welcome to our newly developed triplex apartment in the heart of St Paul, Minnesota - a modern living space designed to meet the diverse needs of today's urban dweller. This thoughtful crafted triplex combines contemporary style with functionality, offering three unique residences that provide comfort, convenience, and a true sense of home.
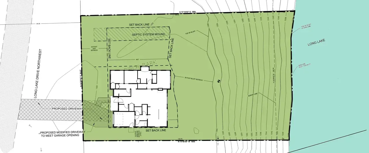
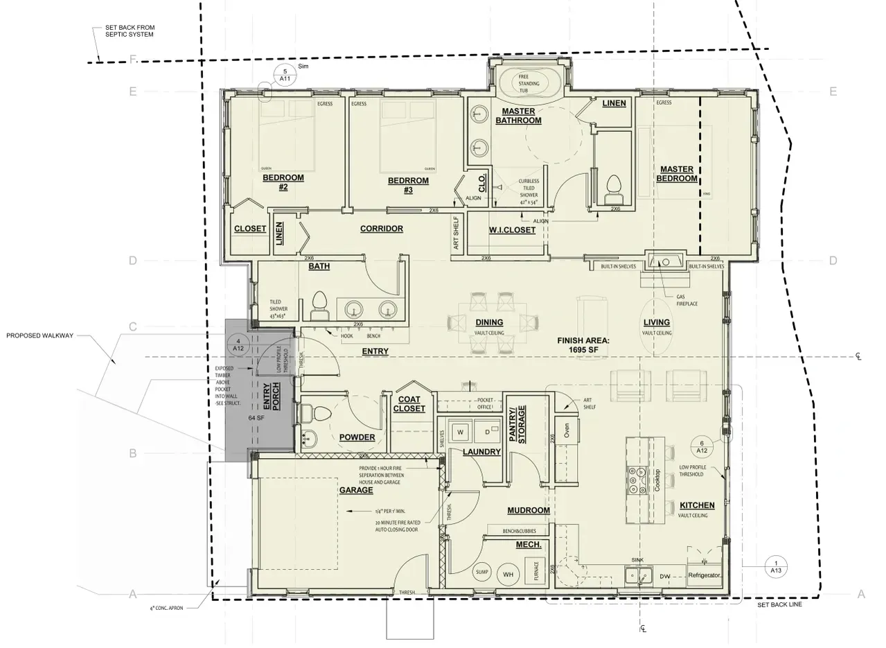
Long Lake Residence - MN
The project entails the design and construction of a charming yet practical cabin nestled along the shores of Long Lake, Minnesota. Inspired by the natural beauty and tranquility of the area, this cabin will serve as a cozy getaway for individuals or families seeking respite from city life and a connection with the outdoors.
Levis Town Retirement Home - WI
This retirement home aims for the design and construction of a modern and accessible residence tailored to meet the needs of retirees seeking comfort, convenience, and independence. Located in the serene landscapes of Clark County, Wisconsin, this retirement home prioritizes features such as living in place design principles, no-step entry, accessible bathroom, kitchen, and circulation to ensure a safe and welcoming environment for residents.





































































































































































































