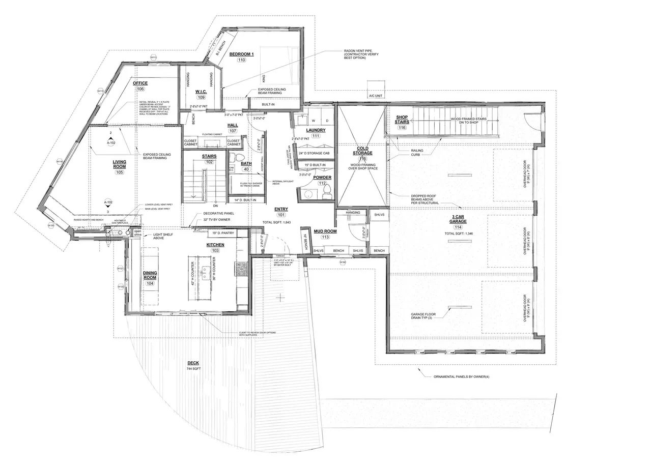
Island Summer Place
Replacing a small worn cabin, this new lake house embraces the stunning view of Lake Superior from the still shores of Madeline Island. The architecture features a wood-burning stone fireplace, an outdoor shower, an exceptionally stunning deck, and expansive living room doors that reach around the entire screen porch. Moreover, the upper floor of this custom home design includes guest rooms, an open play area for kids, and an office space that features yet another lovely view of the nation's largest lake.
Island Retreat
This beautiful home is on the south shore of Madeline Island. The home features a small well-constructed footprint with a cozy year-round retreat. The open main floor living spaces overlooks the Big Bay of Lake Superior. This design was featured in the AIA Minnesota / Mpls St Paul Magazine and received the R.A.V.E. Award (Residential Architects Vision & Excellence)
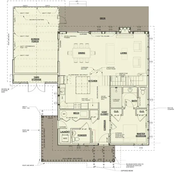
Roy's Point Retreat - Bayfield, WI
Welcome to our newest addition to the breathtaking shores of Roy's Point in Bayfield, Wisconsin—a custom-designed lake home that perfectly blends modern comfort with the natural beauty of the Lake Superior coastline. This stunning residence is thoughtfully crafted to offer unparalleled lakeside living. With panoramic views of the water, spacious interiors, and high-end finishes, the home captures the essence of tranquility and luxury. Join us in celebrating this exceptional lakefront home that redefines modern living at Roy's Point, where every day begins with the beauty of Lake Superior at your doorstep.
Mille Lacs Lake Legacy
This new cabin was built to be a space for the whole family; it was built to last so that the cabin could be passed down from generation to generation. The notable features of this cabin include an open floor plan and a "Ranger Tower Lookout," both of which accentuate the stunning view of the south shore of Lake Mille Lacs.


































































